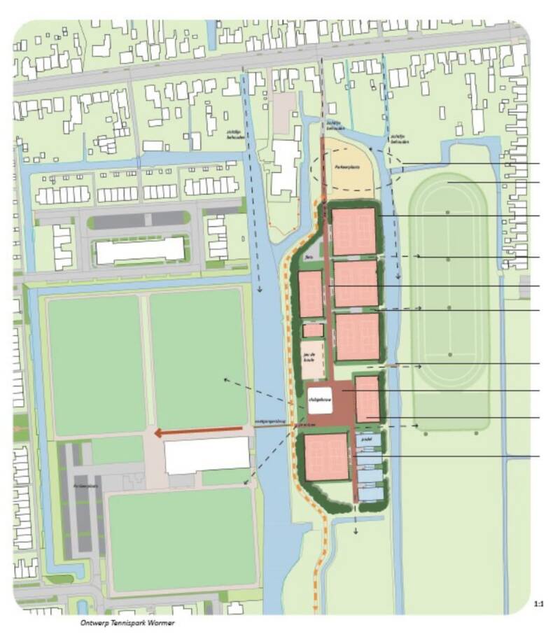
Conform eerdere afspraken met de commissie Ruimte, Wonen en Klimaat en de gemeente Wormerland leggen GS het totaalplan voor de woningbouw op de huidige drie locaties van de drie tennisclubs en het verplaatsen van sportvoorzieningen naar de natuurijsbaan voor aan de Statencommissie Ruimte, Wonen en Klimaat voor een advies.
Onderstaand treft de u betreffende documenten: ( klik op de gekleurde balk)
